

GREAT PRODUCTS

WE LOVE WHAT WE DO!
With over 2000 projects under our belt, we have been beautifying kitchens and interiors for over 20 years. Gorgeous homes and wonderful friendships have been created as a result. Please look around the site and you will see what we mean!
We are AUTHENTIC.

REACH OUT
You can email or give us a call. Let’s chat about your goals, vision and ideas and we will help guide you on your way.
512-
We LISTEN.
© SWANX INTERIORS LLC. All rights reserved.
Site built BY Michele DeCorby of SWANX



Westlake 360 part deux
MISSY AND DAVID'S MASTER SUITED
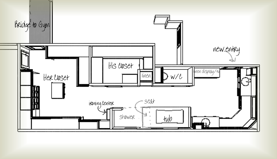
Missy’s Master was a so much fun . The existing space presented a few challenges. On the wish list, his and her closets, closet island, loads of storage, soaker tub, walk in shower, and a new Gym over the dining room attic space.
The ceiling was lower than the standard 8’ so for the long space so we worked to raise it up 15” . You can see the builds outs over the vanity to accommodate the pitch. We moved the commode and placed the vanities under the left and right of the windows, and did a lower section under the windows. An angled wall was added for the cosmetic area for mirror and lighting. If you stand in the middle of the master suite, you can see the views reflected across the mirrors. There is a glass display cabinet , linen cabinet with laundry center and towers that conceal the electric tooth brush and razor. Missy did a fabulous job selecting all the tile, fixtures and tops, taking the suite to the ultimate level.
David’s closet is done in the warm grey and features a dresser unit, hat shelves, shoe racks, belt pull out, tie pull out and dry cleaning bin with bench top and full length mirror.
Missy’s closet is done in the millstone finish and features an ironing center, shoe cabinet and shelves, show case cabinet, island, drawers and belt and scarf pull out. The master suite fireplace was redone as well as the bedroom. Both Missy and my favorite treat is the catwalk designed to access the new gym, when those photos are done we will be sure to add them, for the full tour. Thanks for taking the time to view!
Missy’s Glam master suite remodel!


